Kusursuz bir kreş kat planı tasarlamak göz korkutucu bir görev gibi görünebilir. Diyelim ki bir kreş kurmak veya yenilemekBu durumda, atılacak ilk ve en önemli adımlardan biri, çocukların, eğitimcilerin ve ebeveynlerin işlevsel ve duygusal ihtiyaçlarını karşılayan bir düzen geliştirmektir. İyi düşünülmüş bir tasarım olmadan, en iyi niyetli kreşler bile aşırı kalabalık sınıflar, verimsiz alan kullanımı ve güvenlik endişeleri gibi sorunlarla boğuşabilir. Tahmin edebileceğiniz gibi, bu durum bakım kalitesini ve hatta kreşinizin itibarını hızla etkileyebilir.
Birçok yeni kreş sahibi ve hatta deneyimli sağlayıcılar bile ortak bir zorlukla karşı karşıyadır: Çocuk gelişimi ve güvenliği için işlevsel ve elverişli bir kat planı. Kreş kat planları tasarlarken, karmaşıklık karşısında bunalmak kolaydır. Dikkate alınması gereken birçok faktör var. Bebek odaları için ideal yerleşim planlarını anlamaktan, ilgi çekici bir açık hava oyun alanı planlamaya kadar, alanı mobilya ve oyuncaklarla doldurmaktan çok daha fazlası var. Bir kreşin çeşitli ihtiyaçlarını dengeleyen bir kat planına ihtiyacınız var: güvenliği sağlamak, alanı optimize etmek ve çocukların gelişebileceği besleyici bir ortam sağlamak.
Neyse ki çözüm, tesisinizin ihtiyaçlarına göre uyarlanmış kreş planları oluşturmakta yatıyor. İster ev tipi bir kreş için küçük bir kreş planı, ister ticari bir alan için büyük bir kreş planı planlayın, asıl mesele, alanı en üst düzeye çıkarırken güvenli ve samimi bir atmosfer sağlayan net ve yenilikçi tasarım fikirleriyle başlamaktır. Bu makale, farklı kreş planı fikirlerini ve bunları kendi ihtiyaçlarınıza nasıl uyarlayabileceğinizi ele alacaktır. Kreş düzeninden ve sınıf kat planlarından kreş dış mekan oyun alanı kat planları fikirlerine kadar her şeyi inceleyeceğiz. Bu kılavuzun sonunda, sizin, personeliniz ve en önemlisi bakımını üstlendiğiniz çocuklar için uygun kreş kat planlarını nasıl tasarlayacağınızı anlayacaksınız.

İyi Tasarlanmış Bir Kreş Kat Planının Önemi
Girişte de belirttiğimiz gibi, kreşinizin düzeni başarısı için hayati önem taşır. Kreş kat planları sadece mobilyaları düzenlemekle ilgili değildir; aynı zamanda mekanın genel atmosferini şekillendirir, çocukların gelişimini destekler ve hem çocuklar hem de personel için güvenli ve işlevsel bir ortam sağlar.
Güvenlik Önce Gelir
İyi tasarlanmış kreş kat planları her zaman güvenliği sağlar. Kreş kat planlarınızı tasarlarken, mekanın akışını göz önünde bulundurmanız çok önemlidir. Örneğin, oyun alanlarını sessiz alanlardan ayırmak kaza riskini azaltabilir. Mekan genelindeki net görüş hatları, personelin çocukları oynarken, yemek yerken veya dinlenirken kolayca denetlemesini sağlar. Güvenli ve açık yollara sahip bir düzen, çocukların acil bir durumda hızla tahliye olmalarını da sağlar.
İşlevsellik için Alanı Optimize Etme
İster küçük bir kreş kat planıyla ister daha büyük bir tesisle çalışın, alanınızdan en iyi şekilde yararlanmak çok önemlidir. Özenli bir düzen, herhangi bir alanı aşırı kalabalıklaştırmadan tüm aktiviteler (oyun, öğrenme, yemek ve dinlenme) için yeterli alan sağlar. Daha küçük alanlar için, küçük kreş kat planları her santimetreden en iyi şekilde yararlanmak için çok işlevli alanlar oluşturmalıdır. Büyük bir kreşte bile, herhangi bir alanın çok boş veya dağınık görünmesini önleyerek kolay akışlı alanlar tasarlamak önemlidir.
İyi bir kreş kat planı, konfor ile pratikliği dengelemenize yardımcı olur, böylece alan çocuklar ve personel için verimli ve işlevsel olur.
Çocuk Gelişimini Destekleme
Seçtiğiniz kreş kat planları, çocukların gelişimini doğrudan etkileyecektir. Çocukların ihtiyaçlarını göz önünde bulundurarak mekanlar tasarladığınızda, öğrenebilecekleri, gelişebilecekleri ve sosyalleşebilecekleri bir ortam yaratırsınız. Örneğin, açık alanlara sahip bir kreş sınıf kat planı, grup aktivitelerini teşvik ederek çocukların ekip çalışması ve iletişim becerilerini geliştirmelerine yardımcı olur. Bireysel aktiviteler veya okuma için sessiz köşeler, çocukların odaklanmasına ve bağımsızlık kazanmasına yardımcı olur.
Esnek kreş planları, çocuklarınızın değişen ihtiyaçlarına uyum sağlamanıza olanak tanır. Çocukların aktiviteleri ve rutinleri büyüdükçe değişir ve düzeniniz bu esnekliğe uyum sağlamalıdır.



Sadece hayal etmeyin, tasarlayın! Özel mobilya ihtiyaçlarınız hakkında konuşalım!
Bir Kreş Kat Planı Tasarlarken Dikkat Edilmesi Gereken Temel Hususlar
Kreş kat planları oluştururken birkaç önemli faktör göz önünde bulundurulmalıdır. İyi tasarlanmış bir düzen, kreşinizi işlevsel hale getirir ve çocuklar için güvenli, konforlu ve ilgi çekici olmasını sağlar. İster ev tabanlı bir kurulum için küçük bir kreş kat planı, ister daha büyük bir kreş kat planı üzerinde çalışıyor olun, aşağıdaki noktalar mükemmel bir alan yaratmanın anahtarıdır.
1. Alanınızın Boyutunu Göz Önünde Bulundurun
Doğru kat planını seçmenin ilk adımı, mevcut alan boyutunu değerlendirmektir. Küçük bir kreş kat planıyla çalışıyorsanız, alanı aşırı kalabalıklaştırmadan en iyi şekilde değerlendirmelisiniz. Her metrekareyi en iyi şekilde değerlendiren sade kreş kat planlarını tercih edin. Daha geniş alanlar için daha açık düzenler deneyebilir veya farklı aktiviteler için ayrı alanlar oluşturabilirsiniz.
2. Planı Yaş Gruplarınıza Uyarlayın
Kreşler genellikle bebeklerden yürümeye başlayan çocuklara ve okul öncesi çocuklara kadar çeşitli yaş gruplarına hitap eder. Bu nedenle, kat planı her yaş grubunun ihtiyaçlarını karşılayan farklı alanlar içermelidir. Örneğin, bir bebek kreşi kat planı, emekleme ve duyusal aktiviteler için güvenli alanlara odaklanacaktır. Buna karşılık, bir okul öncesi sınıf kat planı, grup oyunları ve yaratıcılık için etkileşimli alanlar içerebilir.
3. Esnekliği Düşünün
Esnek bir kreş kat planı, mekanı günlük aktivitelere ve ihtiyaçlara göre uyarlamanın anahtarıdır. Çeşitli eğitim aktiviteleri, oyun saatleri veya dinlenme süreleri için yeniden düzenlenebilen modüler kreş kat planları gibi hareketli mobilyalara sahip tasarımları tercih edin. Düzendeki esneklik, çocukların ihtiyaçları zamanla değiştikçe mekanın da gelişmesini sağlar.
Sadece hayal etmeyin, tasarlayın! Özel mobilya ihtiyaçlarınız hakkında konuşalım!
4. Güvenlik Özelliklerini Dahil Edin
Bir kreş kat planı seçerken güvenlik her zaman en önemli önceliğiniz olmalıdır. Düzenin keskin köşelerden kaçındığından ve özellikle küçük çocukların oynayacağı veya dinleneceği alanlarda gerekli yerlerde yeterli güvenlik bariyerleri içerdiğinden emin olun. Fiziksel güvenliğin yanı sıra, aşırı kalabalığı önlemek ve personel için denetimi kolaylaştırmak adına mekanın akışını da göz önünde bulundurmalısınız.
5. İç ve Dış Mekan Alanları Arasında Denge
Yeterli alanınız varsa, kat planınızda iç ve dış mekanları nasıl dengeleyebileceğinizi düşünün. Kreşinizin açık hava oyun alanı planına dahil etmek, çocukların fiziksel ve sosyal gelişimleri için olmazsa olmaz olan doğayla oynamalarına ve etkileşim kurmalarına olanak tanır. İster küçük bir bahçe ister daha büyük bir oyun alanı olsun, dış mekan, kreşinizin iç mekan aktivitelerini tamamlayabilir ve çocuklar için farklı bir ortam sağlayabilir.
6. Ebeveyn ve Personelin İhtiyaçlarını Göz Önünde Bulundurun
Kat planı tasarlanırken, personelin ve ebeveynlerin ihtiyaçlarını göz önünde bulundurmak önemlidir. Personelin depolama alanlarına, mola alanlarına ve çocukları kolayca gözlemleyebilecekleri alanlara erişimi olmalıdır. Genel deneyimi iyileştirmek için, rahat bir bekleme alanı veya bırakma ve alma için açık yollar gibi ebeveyn dostu alanlar da dahil edilmelidir.
Bu yönergeleri izleyerek ve dikkate alarak Kreşinizin özel ihtiyaçlarına göre bir tane seçebilirsiniz Çocuklar ve personel için güvenli, işlevsel ve keyifli bir ortam sağlayan kat planı.

Sadece hayal etmeyin, tasarlayın! Özel mobilya ihtiyaçlarınız hakkında konuşalım!
Design Your Daycare Floor Plan in 7 Steps
Knowing the principles is one thing. Sitting with a blank sheet of paper and trying to create a daycare floor plan from scratch is another. Here’s a practical way to move from nothing to a convincing layout that works in daily life.
Think of indoor and outdoor areas as one continuous learning environment, not two separate worlds. The steps below treat them that way.
Step 1: Decide on Capacity and Age Mix
Before laying out walls, ask:
- How many children are you planning to serve in the first year?
- What’s the target maximum if you grow?
- What ages will you accept (infants, toddlers, preschoolers)?
Your answers shape:
- Number and size of classrooms
- How many toilets and diaper-changing areas you need
- The proportion of quiet vs active zones
You can also start to think very roughly about how many children might be outside at the same time and whether each age group needs its own outdoor corner or can share one larger playground.
Step 2: Collect Local Regulations and Must-Have Requirements
Every region has its own rules for child-care centers:
- Minimum usable indoor area per child.
- Required outdoor play space per child.
- Maximum group size by age.
- Number of toilets and sinks per number of children.
- Requirements for exits, fire doors, and escape routes.
It’s far cheaper to fix problems on paper than in concrete and drywall. And much easier to resize or reposition an outdoor on a drawing now than to discover later that it’s too small or in the wrong place.

Step 3: Draw a Bubble Diagram Before Real Walls
Architects often start with something very low-tech: bubble diagrams. You can do the same, even if you “can’t draw”.
Draw circles for each indoor space you need:
- Entrance and reception
- Infant room
- Toddler room
- Preschool room
- Multi-purpose room
- Kitchen
- Staff room
- Toilets, diaper changing, storage
Add one or more bubbles for outdoor spaces you plan to have:
- Main outdoor playground.
- A smaller, softer infant yard if needed.
- Maybe a quiet garden or sand/water corner.
Draw lines to show which circles should sit close to each other:
- Classrooms next to toilets and hand-washing.
- Classrooms with easy access to the outdoor bubble.
- Kitchen near dining or serving areas.
Draw a few lines to show what should be separated:
- Nap rooms from the noisiest play areas.
- Outdoor playground from kitchen service doors or waste areas.
At this stage, ignore exact dimensions. You’re designing relationships.

Step 4: Fix the Entrance, Outdoor Connection, and Main Axes
Now take your real building floor or site plan. Look for:
- Where can parents comfortably enter and exit?
- Where is the best outdoor play area or potential outdoor area?
- Which sides have the best natural light?
Place on your daycare floor plan:
- Main entrance and reception near the most convenient access point.
- Stroller parking, cubbies, and parent waiting close to the entrance but not blocking circulation.
- Classrooms along the best daylight and, if possible, along the side that connects most directly to your outdoor play area.
- Kitchen and service rooms where natural light is less critical but access for deliveries and trash removal is easy.
Once these “anchors” are set, sketch simple, direct routes from key classrooms to the outdoor area. Where possible, plan for:
- Short, clear paths to the yard.
- A door position that doesn’t cut through the calmest indoor zones.
- Maybe a small covered transition area just outside the door where shoes, coats, or outdoor toys can be handled.
Once you’ve marked these “anchors”, the rest of the daycare floor plan is like filling in a puzzle around them.
Sadece hayal etmeyin, tasarlayın! Özel mobilya ihtiyaçlarınız hakkında konuşalım!
Step 5: Lay Out the Classrooms from the Inside Out
When you think “classroom”, don’t think just four walls and a door. Think of multiple “micro-spaces” inside that room. For each classroom, sketch zones for:
- Circle time and group meetings
- Table-top activities (puzzles, art, writing for older children)
- Block and construction play
- Pretend play (kitchen, costumes, dolls, etc.)
- Reading and quiet rest
- Storage for toys, teaching materials, and children’s personal items
On your daycare floor plan, mark where each of these sits in the room. A few simple rules help:
- Put noisy, high-energy play closer to the door or to the center of the room
- Place reading corners and quiet areas in calmer corners, away from main paths
- Keep a clear path around the room so children and adults can move without crossing through activity zones every time
By designing these micro-spaces on your plan, you’re avoiding the common trap of leaving rooms as empty rectangles that later get over-furnished and cluttered.
Step 6: Design Toilets, Changing Areas, and Hygiene as Part of the Flow
In a daycare, toilets and changing tables are not side notes. They are a big part of the daily routine. A smart daycare floor plan will:
- Place children’s toilets immediately adjacent to classrooms
- Use low partitions or internal windows so staff can watch children using the bathroom
- Allow short, direct routes from play to hand-washing to snack or meal areas
- Include logical places for diaper disposal and cleaning supplies that are out of reach of children but easy for staff
Step 7: Map Real-Life Daily Routes
Once you have a draft daycare floor plan, stop and “live a day” inside it. On a printed copy, trace with different colored pens:
- Morning arrival: parent + child from street to classroom, then parent exit.
- Staff: from staff entrance or changing area to classrooms and back.
- Children: from classroom to toilets, to dining/serving area, to outdoor play and back again.
- Kitchen: from delivery point to storage, food prep, serving, and waste removal.
Where do lines cross and bunch up? Where do you see risk points, like:
- Children walking behind kitchen doors.
- Dirty waste passing near food preparation.
- Staff constantly walking long distances for simple tasks.
- Children making long, complicated journeys to get from classroom to outdoor.
Adjust your daycare floor plan to smooth these routes while keeping zoning and safety intact. This simple “route tracing” step is the difference between a layout that looks fine and one that feels effortless in daily use.
Daha sonra, alanınız için mükemmel tasarımı bulabilmeniz için çeşitli ihtiyaçlara yönelik farklı kreş kat planı düzenlerini inceleyeceğiz.
Sadece hayal etmeyin, tasarlayın! Özel mobilya ihtiyaçlarınız hakkında konuşalım!
Çeşitli İhtiyaçlara Uygun Farklı Gündüz Bakımevi Kat Planı Düzenleri
Doğru kreş kat planını tasarlamak, tesisinizin ihtiyaçlarını anlamakla başlar. İster küçük bir alan, ister büyük bir merkez, hatta evde bir kreşle çalışın, yerleşim planınız çocuklar ve personel için işlevsellik, güvenlik ve konfor arasında denge kurmalıdır. Aşağıda, üç yaygın kreş kat planı türünü inceleyecek ve her senaryoya uygun yerleşim planları oluşturmak için ayrıntılı kılavuzlar sunacağız.
Küçük Alanlar İçin
Küçük bir kreşin kat planını tasarlamak zorlu olabilir, ancak sınırlı alanda bile işlevsel ve verimli bir düzen oluşturmak mümkündür. Önemli olan, güvenlik ve konforu korurken her metrekareyi en iyi şekilde kullanmaktır.


- Çok Amaçlı Alanları Birleştirin
Küçük bir alanda, her alanı çok yönlü hale getirmek önemlidir. Örneğin, bir oyun odası, kolayca taşınabilen veya katlanabilen çocuk boyutunda masa ve sandalyeler ekleyerek bir öğrenme alanı olarak da kullanılabilir. Benzer şekilde, yerleşik oturma alanına sahip depolama üniteleri, oyun mobilyası ve oyuncak veya malzemeler için depolama alanı olarak da kullanılabilir. - Açık Düzenlere Odaklanın
Açık bir düzen, küçük kreş kat planları için idealdir çünkü aşırı kalabalık hissini azaltır. Alanı birçok küçük odaya bölmek yerine, aktivite alanlarını ayırmak için alçak bölücüler veya açık raflar kullanın. Bu aynı zamanda personelin görsel engeller olmadan çocukları birden fazla alanda denetlemesine olanak tanır. - Dikey Boşluk Kullan6
Küçük bir kreşin zemin alanı sınırlı olabilir, ancak dikey alan genellikle yeterince kullanılmaz. Oyuncakları, kitapları ve malzemeleri düzenli ve yerden uzak tutmak için raflar, askılı depolama alanları veya duvar askıları takın. Bu, alanı düzenli tutar ve çocukların daha fazla hareket alanına sahip olmasını sağlar. - Esnek Dinlenme Alanları
Küçük bir kreşte öğle uykusu zamanı zorlu olabilir, ancak katlanabilir uyku matları veya istiflenebilir karyolalarla, gerektiğinde oyun alanını hızlıca dinlenme alanına dönüştürebilirsiniz. Kullanılmadığı zamanlarda taşınabilen veya saklanabilen yumuşak ve hafif mobilyalar seçin.
Küçük kreşinizin kat planlarını dikkatlice planlayarak, sıkışık veya bunaltıcı hissettirmeyen, güvenli ve konforlu bir ortam yaratabilirsiniz.
Tell us about your classroom and we’ll send the most suitable products and catalog. Helping hundreds of early learning centers set up classrooms.
Büyük Kreşler İçin
Büyük merkezler için kreş kat planları tasarlarken, iyi tanımlanmış bölgeler oluşturma ve çeşitli aktiviteler için özel alanlar sağlama konusunda daha fazla esnekliğe sahip olursunuz. Özenli bir düzen, merkezinizin düzenli, verimli ve davetkar görünmesini sağlayacaktır.


- Tanımlı Bölgeler Oluşturun
Daha fazla alan, farklı aktiviteler için belirli alanlar belirleme fırsatını da beraberinde getiriyor. Örneğin:- Oyun Alanları: Aktif oyun ve grup aktiviteleri için geniş ve açık alanlar tasarlayın. Bunlar, kesintiyi önlemek için daha sessiz bölgelerden uzakta olmalıdır.
- Sınıflar: Bebekler, yürümeye başlayan çocuklar ve okul öncesi çocuklar gibi farklı yaş grupları için ayrı odalar oluşturulmalıdır. Her sınıfın düzeni, o yaş grubunun ihtiyaçlarına göre düzenlenmeli; örneğin bebekler için yumuşak zeminler ve yürümeye başlayan çocuklar için interaktif oyun köşeleri gibi.
- Dinlenme Bölgeleri: Sessiz ve loş ışıklı, özel uyku alanları tasarlayın. Daha büyük kreşler için, ana aktivite alanlarından ayrı, beşik veya portatif karyolaların bulunduğu kalıcı odalar olabilir.
- Trafik Akışını Düzenleyin
Trafik akışı iyi planlanmamışsa, büyük bir tesis hızla kaotik bir havaya bürünebilir. Geniş koridorlar ve bölgeler arasındaki açık yollar, personelin, çocukların ve velilerin sıkışıklık yaşamadan aceleyle hareket edebilmelerini sağlar. Mutfak veya personel dinlenme salonu gibi merkezi alanlar, maksimum rahatlık için stratejik olarak konumlandırılmalıdır. - Ebeveyn Dostu Özellikler Ekleyin
Daha büyük kreşlerde, ebeveynler genellikle çocuklarını aynı anda bırakıp alırlar. Kayıt masası ve bekleme alanı bulunan geniş ve düzenli bir giriş olmazsa olmazdır. Bu, bırakma deneyimini iyileştirir ve hoş bir ilk izlenim yaratır. - Açık Hava Oyun Alanları
Büyük kreşler genellikle açık alan avantajına sahiptir. İyi tasarlanmış bir kreşin açık hava oyun alanı planı, tırmanma yapıları, kum havuzları ve koşu ve oyun alanları gibi çeşitli ekipmanlar içerebilir. Açık alanın güvenli bir şekilde kapatıldığından ve ana tesisten kolayca erişilebildiğinden emin olun.
Geniş bir kreş kat planı, çocuklara mevcut alandan yararlanarak keşfedebilecekleri çeşitli ilgi çekici, güvenli ve konforlu alanlar sağlayabilir.
Tell us about your classroom and we’ll send the most suitable products and catalog. Helping hundreds of early learning centers set up classrooms.
Evde Kreş Düzenleri İçin
Evden kreş işletmek, kreş kat planlarına özgün bir yaklaşım gerektirir. Alan, yaşam alanınızla paylaşıldığı için, tasarım, çocuklar için güvenli ve besleyici bir ortam yaratırken verimliliği de ön planda tutmalıdır.


- Kişisel ve Gündüz Bakım Alanları Arasındaki Sınırları Belirleyin
Kreş alanını kişisel yaşam alanınızdan ayırın. Örneğin, evinizin bir odasını veya bölümünü özel olarak kreş kullanımına ayırın. Bu, profesyonel bir atmosferin korunmasına yardımcı olur ve çocukların yapılandırılmış bir öğrenme ortamında olduklarını hissetmelerini sağlar. - Kolay Saklanabilen Mobilyalar Kullanın
Ev tipi kreşlerde alan genellikle sınırlıdır, bu nedenle kullanılmadığında katlanabilen, istiflenebilen veya saklanabilen mobilyalar tercih edin. İstiflenebilir sandalyeler, katlanır masalar ve kompakt oyuncak saklama üniteleri, alanı işlevsel tutarken yerden tasarruf etmek için idealdir. - Güvenliğe Öncelik Verin
Evde bakımda güvenlik en önemli unsurdur. Merdivenleri veya tehlikeli alanları kapatmak için güvenlik kapıları takın ve tüm mobilyaların duvarlara güvenli bir şekilde sabitlendiğinden emin olun. Çocukları çarpma ve düşmelerden korumak için yumuşak halılar veya köpük paspaslar kullanın. - Çok Amaçlı Alanlar Ekleyin
Evde bakım evlerinde, odaların genellikle birden fazla işlevi yerine getirmesi gerekir. Örneğin:- Yemek alanı, aktivite zamanı geldiğinde sanat ve el sanatları istasyonu olarak da kullanılabilir.
- Oturma odasına puf ve kitaplık ekleyerek okuma köşesi haline getirebilirsiniz.
- Açık Hava Oyunu Planı
Geniş bir arka bahçeniz olmasa bile, çocuklar için açık havada bir oyun alanı oluşturmaya çalışın. Küçük bir kaydırak, kum havuzu veya su masası gibi basit bir düzenleme bile bolca eğlence sağlayabilir. Açık hava alanı yoksa, tırmanma matı veya yumuşak oyun alanları gibi iç mekan oyun ekipmanları eklemeyi düşünün.
Verimli ve güvenli ev kreş planları tasarlayarak, kişisel ve profesyonel yaşamınızı dengeleyerek çocuklarınız için davetkar bir alan yaratabilirsiniz.
Tell us about your classroom and we’ll send the most suitable products and catalog. Helping hundreds of early learning centers set up classrooms.
Tasarladığınız kreşin boyutu veya türü ne olursa olsun, doğru kreş kat planları büyük fark yaratabilir. Küçük tesislerde alanı en üst düzeye çıkarmaktan, büyük merkezlerde iyi organize edilmiş alanlar oluşturmaya kadar, her düzen kreşinizin benzersiz ihtiyaçlarını yansıtmalıdır. İster küçük kreş kat planları, ister ev tipi kreş düzenleri, ister tam ölçekli bir kreş merkezi kat planı üzerinde çalışıyor olun, dikkatli bir planlama, alanınızın bakımınızdaki çocuklar için güvenli, verimli ve ilham verici olmasını sağlayacaktır.
Kreş Kat Planınıza Temel Bölgeleri Nasıl Dahil Edersiniz?
Kreş kat planı tasarlamak, sadece mekanları düzenlemekten daha fazlasıdır. Özenle hazırlanmış bir düzen, çocukların, personelin ve ebeveynlerin ihtiyaçlarını karşılamak için aktivite, dinlenme ve oyun alanları için açıkça tanımlanmış alanlar içerir. Güvenli, işlevsel ve besleyici bir ortam yaratmak için bu önemli alanları kreş kat planınıza nasıl etkili bir şekilde entegre edebileceğinizi inceleyelim.

Kapalı Alanlar: Öğrenme, Dinlenme ve Yemek İçin Temel Alanlar
Kapalı alanlar, kreşinizin zemin planlarının omurgasını oluşturur. Yapılandırılmış derslerden uyku saatlerine kadar çoğu günlük aktiviteye ev sahipliği yaparlar. Sorunsuz bir işleyiş sağlamak için, küçük alanlarda bile net bir şekilde tanımlanmış bölgeler oluşturmalısınız.
Dahil Edilecek Temel Kapalı Alanlar:
| Alan | Amaç | Örnek Özellikler |
|---|---|---|
| Öğrenme Alanları | Okuma, sanat ve problem çözme gibi odaklanmış aktiviteler yoluyla bilişsel gelişimi destekleyin | Child-sized desks, bookshelves, quiet corners, eğitici oyuncaklar |
| Oyun Alanları | Aktif oyun ve yaratıcılığı teşvik edin | Açık zemin alanı, tırmanma matları, rol yapma mobilyaları (örneğin, oyun mutfak setleri) |
| Dinlenme Alanları | Çocuklara enerjilerini yeniden kazanmaları için sessiz ve rahatlatıcı bir alan sağlayın | Bebekler için beşikler, daha büyük çocuklar için katlanabilir matlar, karartma perdeleri |
| Yemek Alanları | Sorunsuz atıştırmalık ve yemek zamanlarını kolaylaştırın | Çocuk boyunda masalar, kolay temizlenen sandalyeler, mutfağa yakın erişim |
Bu bölgeleri tasarlarken:
- Çok işlevliliği en üst düzeye çıkarın: Daha küçük tesisler için oyun ve öğrenme alanlarını birleştirmeyi düşünebilirsiniz. Örneğin, katlanabilir masalar sanat istasyonu veya atıştırmalık masası olarak da kullanılabilir.
- Sorunsuz akışı sağlayın: Çocukların ve personelin alanlar arasında kesinti olmadan hızlı bir şekilde hareket edebilmesi için yolları açık ve düzenli tutun.

Açık Hava Oyun Alanları: Aktif Oyun İçin Olmazsa Olmaz
Açık alanlar, her kreşin kat planı için kritik öneme sahiptir. Çocuklara fiziksel aktivite, keşif ve temiz hava fırsatları sunarlar. İyi bir açık hava oyun alanı kat planı, yaratıcılığı teşvik eder ve güvenliği sağlar.
Dış Mekan Alanlarını Alt Bölgelere Ayırın:
- Aktif Oyun Alanı: Enerjik oyunlar için tırmanma yapıları, kaydıraklar ve salıncaklar ekleyin. Bunlar yaşa uygun olmalı ve yaralanmaları önlemek için kauçuk veya çim gibi yumuşak yüzeylere yerleştirilmelidir.
- Sessiz Bölge: Çocukların daha sakin ve yaratıcı aktivitelerde bulunabilecekleri kum havuzları, su masaları veya bahçe köşeleri ekleyin.
- Gölgeli Alan: Çocuklarınızı gölgelikli yapılar veya ağaçlarla güneşten koruyun, sıcak günlerde bile açık hava aktivitelerinin güvenli bir şekilde devam etmesini sağlayın.
Erişilebilirliği Planlayın:
Dış mekan alanlarının iç mekan oyun alanlarından kolayca erişilebilir olduğundan emin olun. Geniş, güvenli kapılar ve doğrudan geçiş yolları, personelin çocukları alanlar arasında hızlı bir şekilde geçirmesine yardımcı olabilir.
Dikkat Edilmesi Gereken Güvenlik Önlemleri:
- Oyun alanının tamamının etrafına güvenli bir çit kurun.
- Hem çocuklar hem de personel için giriş ve çıkışları işaretleyin.
- Güvenlik standartlarını karşıladığından emin olmak için ekipmanı düzenli olarak denetleyin.


Esnek Düzenler: Gelecekteki Büyümeye Uyum Sağlama
Bir kreşin ihtiyaçları, artan kayıt sayısı, değişen yönetmelikler veya büyüyen yaş grupları nedeniyle sürekli değişir. Esnek kreş kat planları, tesisinizin önemli tadilatlara gerek kalmadan uyum sağlayabilmesini sağlar.
- Modüler Mobilya Kullanın: Taşınabilir, katlanabilir veya istiflenebilir mobilyalar seçin. Örneğin, modüler raf üniteleri alanları bölmek veya açmak için yeniden düzenlenebilir.
- Açık Düzenler Tasarla: Kalıcı duvarlar yerine, yeni bölgeler oluşturmak veya mevcut bölgeleri birleştirmek için yeniden yapılandırılabilen bölmeler kullanın.
- Genişlemeye Yer Bırakın: Büyüme öngörüyorsanız, daha sonra genişletilebilecek alanlar tasarlamayı düşünün. Örneğin, kreş sınıfı kat planı Ekstra depolama alanı veya bitişikteki kullanılmayan alan gerektiğinde yeni bir aktivite odasına dönüştürülebilir.
Esnek Düzenlerin Uygulamadaki Örnekleri:
- Önce: Öğrenme ve oyun alanlarına ayrılmış tek bir açık oda.
- Genişlemeden Sonra: Yeni hareketli bölmeler, özel bir uyku alanı ve küçük bir iç okuma köşesi yaratıyor.
Tell us about your classroom and we’ll send the most suitable products and catalog. Helping hundreds of early learning centers set up classrooms.
Vaka Çalışması: Gerçek Bir Yaşam Örneğinde Önemli Bölgeleri Bir Araya Getirme
Bir kreşin, kreş kat planlarını maksimum verimlilik ve işlevsellik sağlayacak şekilde nasıl tasarladığına dair bir örnek ele alalım:
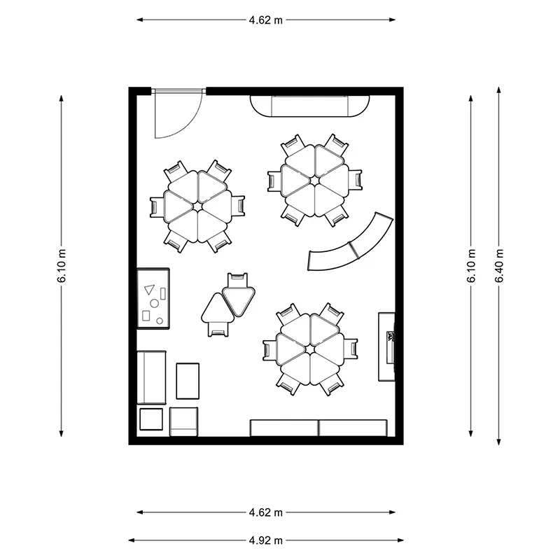
Senaryo: 1-5 yaş arası 40 çocuğun eğitim gördüğü orta ölçekli bir kreş. Mevcut alan yaklaşık 1.400 metrekaredir.
| Alan | Çözüm |
|---|---|
| Öğrenme Alanı | İki sınıfa ayrılmıştır: biri yürümeye başlayan çocuklar (1-3 yaş) ve diğeri okul öncesi çocuklar (3-5 yaş) için, yaşa uygun mobilyalar ve etkileşimli öğrenme araçları ile. |
| Oyun Alanı | Değişen grup boyutlarına uyum sağlamak için yumuşak döşeme, duyusal oyun ekipmanları ve hareketli depolama alanı bulunan açık düzen. |
| Açık Alan | Gerektiğinde bölgeleri ayırmak için modüler raflar ve sınıflar arasında taşınabilen tekerlekli bir sanat arabası. |
| Dinlenme Alanı | Büyük çocuklar için istiflenebilir karyolalar ve bebekler için beşiklerin bulunduğu, huzurlu bir atmosfer için loş ışıklandırmalı paylaşımlı uyku odası. |
| Esnek Eklemeler | Gerektiğinde bölgeleri ayırmak için modüler raflar ve sınıflar arasında taşınabilen tekerlekli bir sanat arabası. |
Bu örnek, tanımlanmış bölgelerin, kreşin ihtiyaçları arttıkça uyum sağlama esnekliğiyle nasıl dengelenebileceğini göstermektedir.
Kreşinizin kat planına iyi tasarlanmış alanlar eklemek, kreşinizin çocukların, personelin ve ebeveynlerin ihtiyaçlarını karşılarken verimli bir şekilde çalışmasını sağlar. Her alan -rahat bir iç mekan dinlenme alanı veya dinamik bir dış mekan oyun alanı- dengeli ve besleyici bir ortam yaratır.
Kreşinizin kat planlarını tasarlarken bu alanların nasıl kusursuz bir şekilde birlikte çalışabileceğini göz önünde bulundurun. Doğru yerleşim düzeni sadece işlevsellikle ilgili değildir; çocukların gelişebileceği, personelin verimli çalışabileceği ve ebeveynlerin kreş seçiminde kendilerini güvende hissedebilecekleri bir alan yaratmakla ilgilidir.
Daha sonra, tasarımınıza ilham verebilecek ve planlama sürecini basitleştirebilecek kreş kat planı şablonlarını ve örneklerini inceleyin.

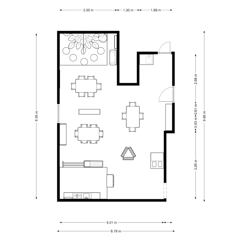
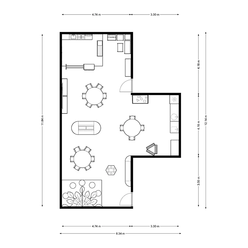
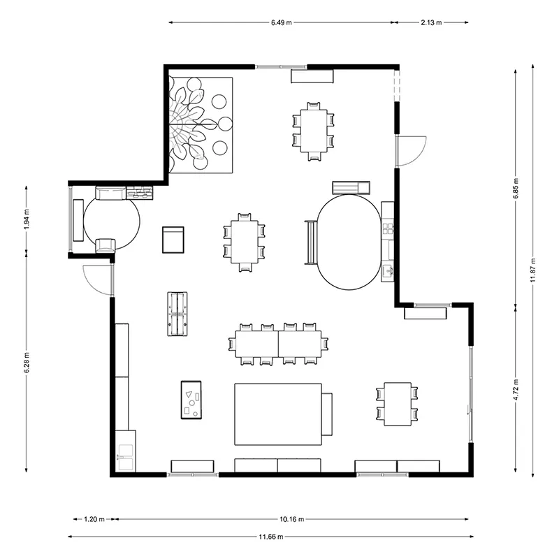
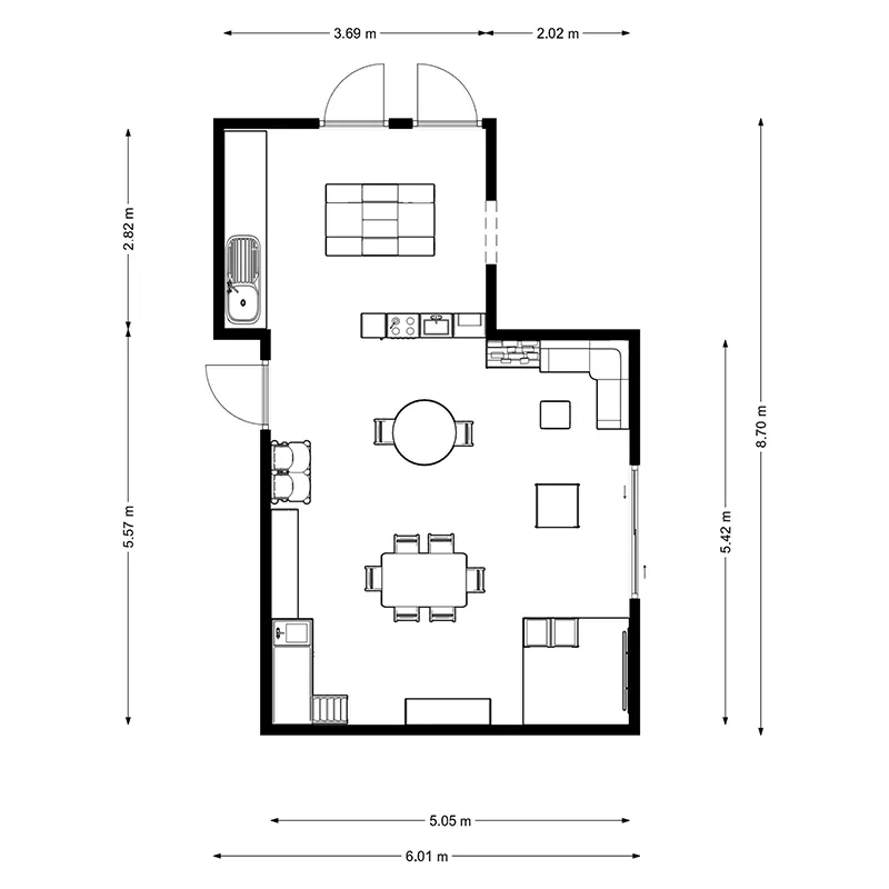
Kreş Kat Planı Şablonları ve Örnekleri: Tasarımınız İçin İlham
Kreşinizi tasarlarken bazen görsel bir referansla başlamak daha kolaydır. Kreş kat planı şablonları ve kreşler için örnek kat planları, alanınızı etkili bir şekilde nasıl düzenleyeceğiniz konusunda değerli bilgiler sunabilir. İster evde bir kreş kat planı oluşturun, ister daha büyük bir kreş binası kat planı planlayın, şablonlar işlevsel ve yaratıcı bir alan için temel oluşturur.
Aşağıda, her biri farklı ihtiyaç ve ortamlara göre tasarlanmış çeşitli kat planı örneklerini inceleyeceğiz. Bu düzenler, kişiselleştirme için pratik fikirler sunarken ilham kaynağı da olabilir.












Bu örnekleri kendi özel ihtiyaçlarınız ile birleştirerek hem işlevsel hem de ilham verici kreş kat planları oluşturabilirsiniz.
To see more case studies, please browse my client projects page.
| Gündüz Bakımevi Kat Planı Türü | İdeal Tesis Boyutu | Temel Özellikler |
|---|---|---|
| Küçük Kreş Kat Planı | 5-10 çocuk | Çok amaçlı alanlar, kompakt mobilyalar ve dar alanlarda işlevselliği en üst düzeye çıkaracak açık düzenler. |
| Orta Ölçekli Kat Planı | 10-20 çocuk | Oyun, öğrenme ve dinlenme için özel alanlar; hareketli bölmelere sahip esnek sınıflar; mütevazı ama iyi donanımlı dış mekan alanı. |
| Büyük Gündüz Bakımevi Kat Planı | 20-50 çocuk | Farklı yaş gruplarına yönelik çok sayıda sınıf, merkezi yemekhaneler, personel dinlenme odaları ve geniş açık hava oyun alanları. |
| Evde Gündüz Bakımevi Kat Planı | <10 çocuk | Yemek ve oyun için ortak yaşam alanları, kompakt depolama çözümleri ve açık hava aktiviteleri için arka bahçe veya veranda uyarlamaları. |
Kreş Kat Planları Oluşturmak İçin En İyi Çevrimiçi Araçlar
Kreşinizin kat planlarını tasarlamaya hazırsanız ancak nereden başlayacağınızdan emin değilseniz, birçok çevrimiçi araç ve web sitesi süreci kolaylaştırabilir. Bu platformlar, düzeninizi görselleştirmenize, farklı tasarımlar denemenize ve kreşinizin her köşesinin verimli bir şekilde kullanılmasını sağlamanıza olanak tanır. İster küçük bir ev kreşi ister büyük bir kreş için tasarlanmış olsun, profesyonel görünümlü kreş kat planları oluşturmak için en iyi araçlardan bazıları aşağıdadır.

1. RoomSketcher
Web sitesi: https://www.roomsketcher.com
RoomSketcher, detaylı 2B ve 3B kat planları oluşturmanıza olanak tanıyan kullanıcı dostu bir platformdur. Düzeni özelleştirebilir, mobilya ekleyebilir ve hatta kreşinizin gerçek hayattaki görünümünü görselleştirebilirsiniz.
- Sürükle-bırak arayüzü, düzenleri tasarlamayı ve değiştirmeyi kolaylaştırır.
- Çocuk dostu mobilyaların da yer aldığı geniş bir mobilya kütüphanesi, kreşler için idealdir.
- Gerçekçi 3D görünümler, kreşinizin düzenini her açıdan keşfetmenizi sağlar.
- Hem küçük kreş kat planları hem de daha geniş kreş merkezleri kat planları için mükemmeldir.
RoomSketcher, farklı düzenlerle denemeler yapmanıza olanak tanıyarak oyun, öğrenme ve dinlenme için işlevsel alanlar oluşturmanızı kolaylaştırır. Modüler ve esnek düzenler tasarlamak için faydalıdır.

2. Planner 5D
Web sitesi: https://planner5d.com
Planner 5D, tasarım deneyimi olmadan detaylı düzenler oluşturmanıza olanak tanıyan sezgisel bir kat planı aracıdır. Kreş kat planı şablonları oluşturmak veya yeni fikirler denemek için mükemmeldir.
- Duvarlar, mobilyalar ve dekorasyonlar için basit sürükle-bırak işlevi.
- Kreşinizin düzenini görselleştirmenize yardımcı olmak için hem 2D hem de 3D kat planları sunar.
- Gerçekçi tasarımlar yaratmak için zengin bir mobilya ve dekorasyon ürünleri kataloğu içerir.
- Evde kreş planları ve okul öncesi kreş planları için iyi çalışır.
Son derece özelleştirilebilir platform, oyun alanları, uyku alanları ve yemek alanları eklemenize olanak tanır. Ayrıca, bütçe dostu seçenekler sunarak, sınırlı kaynaklara sahip kreşler için idealdir.

3. SmartDraw
Web sitesi: https://www.smartdraw.com
SmartDraw, yeni başlayanlar için bile kullanımı kolay, profesyonel düzeyde bir tasarım aracıdır. Kreş ve okul kat planları için çeşitli hazır şablonlar içerir ve tasarımınıza hızlı bir başlangıç yapmanızı sağlar.
- Kreş ve sınıf düzenlerine özel şablonlar içerir.
- Doğru tasarımlar için ölçümleri ve oranları otomatik olarak ayarlar.
- Kat planlarınızı yükleniciler veya personel ile paylaşmak üzere PDF, Word veya Excel'e aktarabilirsiniz.
- Kreş binalarının kat planları ve büyük ölçekli tesisler oluşturmak için idealdir.
SmartDraw'ın önceden oluşturulmuş şablonları zamandan tasarruf sağlar ve şık bir düzen oluşturmayı kolaylaştırır. Hassas ölçümlere ve profesyonel kalitede tasarımlara ihtiyaç duyan ticari kreşler için faydalıdır.

4. Floorplanner
Web sitesi: https://www.floorplanner.com
Floorplanner, etkileşimli kat planları oluşturmak için çevrimiçi bir araçtır. Profesyonel kreş kat planlarını hızlı ve kolay bir şekilde tasarlamak isteyen herkes için mükemmel bir seçimdir.
- Sadece birkaç tıklamayla 2D ve 3D düzenler oluşturun.
- Tasarımınızı kişiselleştirmek için geniş bir mobilya, dekorasyon ve doku kütüphanesi sunar.
- Kreşinizin sanal gezintilerini oluşturmanıza olanak tanır.
- Hem küçük kreş kat planları hem de orta ölçekli kreş kat planları için uygundur.
Aracın basitliği ve etkileşimli özellikleri, herhangi bir değişiklik yapmadan önce düzenlerini görselleştirmek isteyen çocuk bakım sağlayıcıları için idealdir.

5. SketchUp
Web sitesi: https://www.sketchup.com
SketchUp, son derece çok yönlü, profesyonel bir 3B modelleme aracıdır. Diğer araçlardan daha gelişmiş olmasına rağmen, karmaşık kreş kat planları oluşturmak için inanılmaz bir esneklik sunar.
- Son derece detaylı yerleşimler için hassas 3D modelleme.
- Duvarlar, mobilyalar ve dekorasyonlar için geniş özelleştirme seçenekleri.
- Gelişmiş tasarımlar için CAD gibi diğer araçlarla entegre olur.
- Büyük kreş binalarının kat planları veya benzersiz düzenlere sahip tesisler için idealdir.
SketchUp, tasarım deneyimi olan veya mimarlarla çalışan kullanıcılar için en uygunudur. Gelişmiş araçları benzersiz özelleştirme olanakları sunarak, daha kapsamlı veya son derece uzmanlaşmış kreşler için mükemmeldir.
Gündüz Bakımevi Kat Planları için Çevrimiçi Araçların Karşılaştırılması
| Alet | En İyisi İçin | Temel Güçlü Yönler | Beceri Seviyesi |
|---|---|---|---|
| OdaSketcher | Küçükten büyüğe kreşler | Kullanıcı dostu, 3 boyutlu görselleştirme | Başlangıçtan Orta Seviyeye |
| Planlayıcı 5D | Ev ve okul öncesi kreşler | Sezgisel arayüz, uygun fiyatlı seçenekler | Başlangıç |
| AkıllıÇizim | Ticari kreşler | Hazır şablonlar, profesyonel çıktı | Başlangıçtan Orta Seviyeye |
| Kat planlayıcısı | Küçük ve orta ölçekli kreşler | Etkileşimli özellikler, sanal gezintiler | Başlangıç |
| SketchUp | Büyük veya karmaşık kreş tesisleri | Gelişmiş özelleştirme, hassas modelleme | Gelişmiş |
Kreş Kat Planı Tasarımı ve Mobilya Çözümleriniz İçin Neden Bizi Seçmelisiniz?
Bir kreş tasarlamak ve döşemek kolay bir iş değil. Sadece odaları düzenlemek veya mobilya seçmek değil; çocukların gelişimini ve öğrenmesini destekleyen işlevsel, güvenli ve ilham verici bir ortam yaratmakla ilgili. İşte tam da bu noktada devreye giriyoruz. Özel kreş planları hazırlama ve kişiye özel mobilya çözümleri sunma konusunda yılların deneyimiyle, süreci basitleştirirken olağanüstü sonuçlar sunmak için tasarlanmış benzersiz, hepsi bir arada bir hizmet sunuyoruz.
Bizi farklı kılan, kişiselleştirmeye olan bağlılığımızdır. Her kreşin farklı olması nedeniyle, kalıplaşmış tasarımlara inanmıyoruz. İster küçük kreş kat planlarında sınırlı bir alanda çalışıyor olun, ister geniş bir kreş binası kat planı tasarlıyor olun, yaklaşımımızı ihtiyaçlarınıza göre uyarlıyoruz.
Örneğin, üç yaş grubundan 30 çocuk için yeni bir kreş açtığınızı varsayalım. Genel bir düzen yeterli olmayacaktır; yürümeye başlayan çocuklar ve okul öncesi çocukların farklı gelişimsel ihtiyaçları vardır ve bebekler özel bakıma ihtiyaç duyarlar. Özel kreş kat planlarımız, her yaş grubu için tanımlanmış alanlar oluşturarak ve her aşamada güvenliği, öğrenmeyi ve konforu ön planda tutarak bu nüansları ele alır. Bu, yumuşak zeminler, rahat uyku alanları ve bebek bezi değiştirme istasyonlarına kolay erişim anlamına gelebilir. Okul öncesi çocuklar için ise açık oyun alanlarına, iş birlikçi öğrenme alanlarına ve yaratıcılığı teşvik eden ilgi çekici, etkileşimli alanlara odaklanabiliriz.
Ayrıca, kreşinizin sorunsuz bir şekilde işlemesini sağlayan pratik detayları da göz önünde bulunduruyoruz. Personel odalar arasında nasıl hareket edecek? Yemek hazırlama alanları, yemekhanelere yeterince yakın mı ve böylece aksaklıklar en aza indirilecek mi? Oyuncaklar, kitaplar ve malzemeler için dağınıklık yaratmadan yeterli depolama alanı var mı? Kreşinizin kat planlarını hazırlarken bu soruları ele alıyor ve alanınızın yalnızca işlevsel değil, aynı zamanda geleceğe dönük olmasını sağlıyoruz.
Entegre Mobilya Çözümleri
Güzel tasarlanmış bir kreş kat planı, onu canlandıracak doğru mobilyalara ihtiyaç duyar. Bu nedenle, sadece yerleşim planlarıyla sınırlı kalmıyoruz; aynı zamanda tasarımınızı tamamlayan ve işlevselliği artıran, uzmanca seçilmiş mobilyalar da sunuyoruz. Bu sayede, her mobilyanın mekana mükemmel uyum sağlamasını ve kreşinizin benzersiz ihtiyaçlarını karşılamasını sağlıyoruz.
Her şeyin amaçlı ve davetkar hissettirdiği, tam donanımlı bir kreşe girdiğinizi hayal edin. Masalar ve sandalyeler çocukların boyutlarına göre ayarlanmıştır, böylece oturup etkileşim kurmaları kolaydır. Depolama üniteleri, çocukların bağımsızlığını teşvik etmek için stratejik olarak yerleştirilmiştir ve çocukların oyuncaklara veya kitaplara bağımsız olarak erişmelerini sağlar. Oyun matları ve modüler mobilyalar, günlük aktivitelere uyum sağlayan esnek alanlar yaratır. Çocukların her koşulda güvenle oynayabilmeleri için hava koşullarına dayanıklı oyun ekipmanları ve dış mekanlarda gölgelikli oturma alanları sağlıyoruz.
Yaklaşımımızı benzersiz kılan şey, mobilyaları kreşinizin kat planlarına kusursuz bir şekilde entegre etmemizdir. Örneğin, orta büyüklükteki bir kreşte, kullanılmadığında kaldırılabilen ve grup aktiviteleri veya uyku zamanı için alan açabilen istiflenebilir sandalyeler ve katlanabilir masalar önerebiliriz. Daha geniş tesislerde ise, ihtiyaçlarınız değiştikçe alanları yeniden düzenlemenize olanak tanıyan modüler raf üniteleri ve açık yerleşim planlarına önem veriyoruz. Bu esneklik, büyümeyi veya değişen öğrenci sayılarına uyum sağlamayı hedefleyen kreşler için çok önemlidir.
Sadece hayal etmeyin, tasarlayın! Özel mobilya ihtiyaçlarınız hakkında konuşalım!
Neden Doğru Seçim Biziz?
Birçok şirketin tasarım veya mobilya hizmetleri sunduğunu biliyoruz, ancak çok azı bizim sunduğumuz uzmanlık ve kapsamlı çözümlerle boy ölçüşebilir. Bizi farklı kılan özellikler şunlardır:
Bütünsel Yaklaşım: Sadece tasarım veya mobilyaya odaklanan şirketlerin aksine, her şeyi tek bir çatı altında birleştiriyoruz. Tasarımlarımız ve mobilyalarımız mükemmel bir şekilde uyumlu olduğundan, kreşinizin her yönüyle uyumlu bir şekilde çalışmasını sağlıyoruz.
Güvenebileceğiniz Deneyim: Her büyüklükteki tesis için özel kreş kat planları tasarlama konusunda geçmişe dayanan deneyimimizle, bir kreşi gerçekten etkili kılan şeyin ne olduğu konusunda derin bir anlayış geliştirdik.
Güvenlik ve Uyumluluğa Odaklanıyoruz: Oluşturduğumuz her tasarım yerel güvenlik düzenlemelerine ve standartlarına uygundur, böylece kreşinizin tüm gereklilikleri karşıladığından emin olabilirsiniz.
Müşteri Odaklı Süreç: İlk danışmanlıktan son kuruluma kadar her adımda sizinle yakın bir şekilde çalışıyoruz. Vizyonunuz ve geri bildirimleriniz sürecimize yön veriyor ve nihai sonucun beklentilerinizi aşmasını sağlıyoruz.
Kreşinizi güven ve mutluluk veren bir alana dönüştürmeye hazırsanız, ücretsiz kreş kat planı danışmanlığımızdan yararlanın. Bu danışmanlık, hedeflerinizi netleştirmenize, benzersiz ihtiyaçlarınızı belirlemenize ve kreş tasarımınız için net bir yol haritası oluşturmanıza yardımcı olmak üzere tasarlanmıştır.
Sadece hayal etmeyin, tasarlayın! Özel mobilya ihtiyaçlarınız hakkında konuşalım!
Çözüm
Etkili kreş kat planları tasarlamak, yalnızca mobilya düzenlemek veya alanı bölmekten daha fazlasıdır; çocukların büyümesini ve gelişimini desteklerken, işlevsellik, güvenlik ve yaratıcılığı bünyesinde barındıran bir ortam yaratmakla ilgilidir. İster evde bakım hizmeti veren bir kreş için küçük bir kreş kat planı planlayın, ister büyüyen öğrenci sayısına uygun orta ölçekli bir tesisi özelleştirin, ister büyük bir ticari merkez için kapsamlı bir kreş binası kat planı tasarlayın, seçtiğiniz düzen başarının temelini oluşturur. Özenle tasarlanmış kreş kat planları, çocuklar, personel ve ebeveynler için sıcak, davetkar ve ilham verici, düzenli ve işlevsel bir alan yaratmak için gereken yapıyı sağlar.
Her kreş benzersizdir ve bu yüzden kişiselleştirme önemlidir. Mükemmel kreş planı, hizmet verdiğiniz yaş gruplarından tesisinizin desteklediği günlük aktivitelere kadar özel ihtiyaçlarınızı yansıtmalıdır. Örneğin, evde bakım hizmeti veren bir kreş, sınırlı metrekarelerden en iyi şekilde yararlanmak için esneklik ve çok amaçlı alanlar gerektirir. Buna karşılık, daha geniş bir kreş, sınıflar, yemek alanları ve açık hava oyun alanları için açıkça tanımlanmış alanlardan faydalanır. Doğru kreş planı ile küçük alanlar bile ferah hissettirebilir ve geniş tesisler uyumlu ve kullanımı kolay olabilir. Kişiselleştirme, kreşinizin çocukların gelişimsel ihtiyaçlarına ve personel verimliliğine göre tasarlanmasını sağlar.